RICARDO PIVA ARQUITETURA
![]() | ![]() | ![]() |
|---|---|---|
![]() | ![]() | ![]() |
![]() | ![]() | ![]() |
![]() | ![]() | ![]() |
![]() | ![]() | ![]() |
![]() | ![]() | ![]() |
Casa Beto Silveiras
Silveiras, SP
Ano: 2005
Arquitetura: Ricardo Piva
Materiais e técnicas:
- fundação de pedras
- paredes de pau a pique
- paredes de pedras recolhidas no terreno
- área molhada tijolo maciço cerâmico assentado com massa de cal, areia e terra
- pintura cal com terra
- forro, piso e esquadrias de janelas de madeira de demolição
- estrutura e madeiramento do telhado de eucalipto tratado roliço
- cobertura telha cerâmica
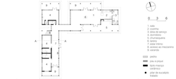
Descrição. Sede de fazenda localizada a quase 1700 metros de altitude na Serra da Bocaina, SP. As partes mais planas do terreno definiram a planta em "L", evitando cortes e aterros numa topografia acidentada.
De difícil acesso, procuramos minimizar o transporte de materiais de fora. Pedras e terra do local foram utilizadas para a fundação e paredes.
Sendo um local muito frio localizamos os dormitórios na face oeste (mais quente), isolados dos ventos da face sul pelo estar íntimo. Por cima da varanda, na face norte, posicionamos janelas que permitem a insolação da sala.
Área interna: 258m²
Área varandas: 106m²
Área total: 364m²

















